Instalacja płaszczyznowo-grzejnikowa w budynku jednorodzinnym podpiwniczonym
Przejdź do nawigacji
Przejdź do wyszukiwania
| Produkt | InstalSystem 4 |
| Typ artykułu | {{{category_name1}}} [[{{{category3}}}|{{{category_name3}}}]] |
| Ostatnia aktualizacja | IS 4.13 |
| Pliki projektu
|
Stan końcowy, ISB |
| Opracowano na | InstalSystem 4.13 Rev. 16-10 |
| Niezbędne moduły | Instal-therm R Instal-therm H |
| Zakres projektu | Ogrzewanie grzejnikowe, Ogrzewanie płaszczyznowe |
| Użyte katalogi | Neutral bathroom radiators Neutral steel panel radiators Neutral steel panel radiators VK PEX/AL/PEX System (pipes and fittings) Neutral valves cataloge - typical construction VK - collective catalogue Basic underfloor heating systems Standard insulation catalogue |
| Rodzaj budynku | Jednorodzinny, podpiwniczony, 3 kondygnacyjny |
| Konstrukcja budynku | Podkład Piwnica, DWG Podkład Parter, DWG Podkład Piętro, DWG |
| Zakres rysunków | Rzut, Rozwinięcie |
| Opracowany przez | www.instalsoft.com |
| Zastrzeżenia prawne | Możliwość kopiowania całości lub fragmentów projektu |
| Wyniki obliczeń | Wyniki obliczeń, Excel Wydruki wyników obliczeń, Adobe |
| Rysunki wynikowe | Rzut Piwnica, DWG Rzut Parter, DWG Rzut Piętro, DWG Rozwinięcie, DWG Rzut Piwnica, jpg Rzut Parter, jpg Rzut Piętro, jpg |
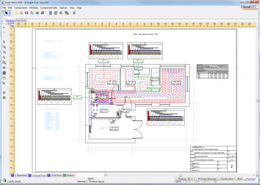
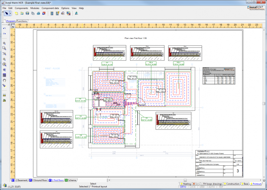
Opis projektu
Przykład przedstawia instalację grzewczą zaprojektowaną dla źródła o parametrach 60/40 stopni C. Pomieszczenia przeznaczone do najczęstszego przebywania ludzi są wyposażone w ogrzewanie podłogowe, natomiast łazienki, garaż oraz pomieszczenia piwniczne są ogrzewane za pomocą grzejników. Źródło zlokalizowane zostało w piwnicy, skąd medium dostarczane jest do odbiorników za pomocą dwóch oddzielnych pionów. Jeden z pionów zasila grzejniki na wszystkich kondygnacjach, natomiast drugi zasila rozdzielacze ogrzewania podłogowego. Przed pionem doprowadzającym medium do rozdzielaczy o.p. zlokalizowany jest mieszacz, który pozwala na utrzymanie temperatury na poziomie odpowiednim dla ogrzewania płaszczyznowego.

