Ogrzewanie płaszczyznowe podłogowe i ścienne w budynku jednorodzinnym: Różnice pomiędzy wersjami

Z HelpSystem
Przejdź do nawigacji Przejdź do wyszukiwania
Linia 68: Linia 68:
|}
|}
<br clear="all"/>
<br clear="all"/>
{{Tabela projektu
|is1          = <!-- Jest plik -> "|initial_state1= <link do pliku na ftp>" / Brak pliku -> "|is1=" -->
|initial_file_name1      = <!-- Jest plik -> "|initial_file_name1= <tytuł pliku>, <rozszerzenie>" / Brak pliku -> "|initial_file_name1=" -->
|is2                    = <!-- Jest plik -> "|initial_state2= <link do pliku na ftp>" / Brak pliku -> "|is2=" -->
|initial_file_name2      = <!-- Jest plik -> "|initial_file_name2= <tytuł pliku>, <rozszerzenie>" / Brak pliku -> "|initial_file_name2=" -->
|final_state1            =https://download.instalsoft.com/public/helpsystem/EN/PP/Installation-with-floor-and-wall-heating-in-single-family-building/Installation-with-floor-and-wall-radiant-heating-in-family-building.isproj
|final_state_name1        = Instalacja ogrzewania podłogowego i ściennego w budynku jednorodzinnym, isproj
|fs2                    = <!-- Jest plik -> "|final_state2= <link do pliku na ftp>" / Brak pliku -> "|fs2=" -->
|final_state_name2        = <!-- Jest plik -> "|final_file_name2= <tytuł pliku>, <rozszerzenie>" / Brak pliku -> "|final_file_name2="-->
|commercial_product      =InstalSystem 5
|rev = 22.5
|module1                =''<IS_TS id=PH_ISNS5_BASE/>''
|module2                =''<IS_TS id=PH_IS5_H/>''
|module3                =''<IS_TS id=PH_IS5_RL/>''
|m4    = <!-- Jest moduł -> "|module4= <nazwa modułu z W6936>" / Brak kolejnego modułu -> "|m4=" -->
|m5=
|range                =Ogrzewanie płaszczyznowe
|catalogue1=Basic radiant systems <!-- nazwa katalogu -->
|catalogue2=Brass and steel pipe couplings and fittings
|catalogue3=Copper pipes and fittings EN 1057
|catalogue4=Miscellaneous fittings of any make
|catalogue5=Standard insulation catalogue
|catalogue6=Neutral valves catalogue-typical construction
|c7        = <!-- Jest katalog -> "|catalogue7= <nazwa katalogu>" / Brak katalogu -> "|c7=" -->
|c8        = <!-- Jest katalog -> "|catalogue8= <nazwa katalogu>" / Brak katalogu -> "|c8=" -->
|c9        = <!-- Jest katalog -> "|catalogue9= <nazwa katalogu>" / Brak katalogu -> "|c9=" -->
|c10      = <!-- Jest katalog -> "|catalogue10= <nazwa katalogu>" / Brak katalogu -> "|c10=" -->
|type                =jednorodzinny
|basement            =niepodpiwniczony
|number_of_storeys    =2-kondygnacyjny
|building_structure1  =
|bs3                  = <!-- Jest plik -> "building_structure3= <link do pliku na ftp>" / Brak pliku -> "|bs3=" -->
|file_name3          = <!-- Jest plik -> "|file_name3= <tytuł rysunku, rozszerzenie>" / Brak pliku -> "|file_name3=" -->
|bs4                  = <!-- Jest plik -> "building_structure4= <link do pliku na ftp>" / Brak pliku -> "|bs4=" -->
|file_name4          = <!-- Jest plik -> "|file_name4= <tytuł rysunku, rozszerzenie>" / Brak pliku -> "|file_name4=" -->
|drawings_range      =Rzuty
|logo                =Plik:Logo-instalsoft-new.png
|www                  =https://instalsoft.com www.instalsoft.com
|legal_disclaimer    =Możliwość kopiowania całości lub fragmentów projektu
|calculation_results1 =https://download.instalsoft.com/public/helpsystem/EN/PP/Installation-with-floor-and-wall-heating-in-single-family-building/Full-printout.xlsx
|results_title1      =Kompletny zakres wyników obliczeń, xls
|calculation_results2                  =https://download.instalsoft.com/public/helpsystem/EN/PP/Installation-with-floor-and-wall-heating-in-single-family-building/Full-printout1.pdf
|results_title2      =Kompletny zakres dostępnych wydruków, pdf
|calculation_results3                  =https://download.instalsoft.com/public/helpsystem/EN/PP/Installation-with-floor-and-wall-heating-in-single-family-building/General-results-heating.pdf
|results_title3      =Wyniki obliczeń dla ogrzewania płaszczyznowego, pdf
|calculation_results4                  =https://download.instalsoft.com/public/helpsystem/EN/PP/Installation-with-floor-and-wall-heating-in-single-family-building/Bill-components.pdf
|results_title4      =Zestawienie materiałów, pdf
|calculation_results5                  =https://download.instalsoft.com/public/helpsystem/EN/PP/Installation-with-floor-and-wall-heating-in-single-family-building/Installation-parameters.pdf
|results_title5      =Parametry montażu, pdf
|drawing_result1      =https://download.instalsoft.com/public/helpsystem/EN/PP/Installation-with-floor-and-wall-heating-in-single-family-building/ground-floor.dwg
|drawing_title1      = Parter, dwg
|drawing_result2      =https://download.instalsoft.com/public/helpsystem/EN/PP/Installation-with-floor-and-wall-heating-in-single-family-building/first-floor.dwg
|drawing_title2      = Piętro, dwg
|drawing_result3      =https://download.instalsoft.com/public/helpsystem/EN/PP/Installation-with-floor-and-wall-heating-in-single-family-building/Print-out-results-ground-floor.pdf
|drawing_title3      = Parter, pdf
|drawing_result4      =https://download.instalsoft.com/public/helpsystem/EN/PP/Installation-with-floor-and-wall-heating-in-single-family-building/Print-out-results-first-floor.pdf
|drawing_title4      = Piętro, pdf
|dr5                  = <!-- Jest plik -> "|drawing_result5= <Link do pliku na ftp>" / Brak pliku -> "|dr5=" -->
|drawing_title5      = <!-- Jest plik -> "|drawing_title5= <tytuł rysunku, rozszerzenie>" / Brak pliku -> "|drawing_title4=" -->
|dr6                  = <!-- Jest plik -> "|drawing_result6= <Link do pliku na ftp>" / Brak pliku -> "|dr6=" -->
|drawing_title6      = <!-- Jest plik -> "|drawing_title6= <tytuł rysunku, rozszerzenie>" / Brak pliku -> "|drawing_title4=" -->
}}


[[Category:InstalSystem 5]]
[[Category:InstalSystem 5]]

Wersja z 12:20, 28 lip 2022

Produkt InstalSystem 5
Typ artykułu PRZYKŁADOWY PROJEKT
Ostatnia aktualizacja 2020-09-14


Opis projektu

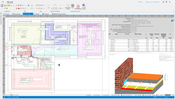
Przykład prezentuje instalację ogrzewania płaszczyznowego, obejmującą ogrzewanie podłogowe oraz ścienne, w niepodpiwniczonym budynku zawierającym dwie kondygnacje.

Pliki do pobrania i informacje o projekcie

Pliki projektu

Jak przeliczyć pobrany plik?

Instalacja ogrzewania podłogowego i ściennego w budynku jednorodzinnym, isproj
Opracowano na InstalSystem 5
Rev. GOLD 23.2
Niezbędne moduły Moduł bazowy
Systemy płaszczyznowe
Systemy grzewcze
Zakres projektu Ogrzewanie płaszczyznowe
Użyte katalogi

Basic radiant systems
Brass and steel pipe couplings and fittings
Copper pipes and fittings EN 1057
Miscellaneous fittings of any make
Standard insulation catalogue
Neutral valves catalogue-typical construction

Rodzaj budynku jednorodzinny
niepodpiwniczony
2-kondygnacyjny
Konstrukcja budynku Podkład parter, dwg
Podkład piętro, dwg
Zakres rysunków Rzuty
Opracowany przez

www.instalsoft.com
Zastrzeżenia prawne Możliwość kopiowania całości lub fragmentów projektu
Wyniki obliczeń Kompletny zakres wyników obliczeń, xls
Kompletny zakres dostępnych wydruków, pdf
Wyniki obliczeń dla ogrzewania płaszczyznowego, pdf
Zestawienie materiałów, pdf
Parametry montażu, pdf
Rysunki wynikowe Parter, dwg
Piętro, dwg
Parter, pdf
Piętro, pdf